A.B.S.
Pelletsilo Flexilo Mini with sucking pot/snail box
Normal priceAway 658,09 €Basic priceNot availableLimited stockAtmos
Atmos pelletilo with a compact design for efficient pellet storage
Normal priceAway 388,30 €Basic priceNot availableIn stockA.B.S.
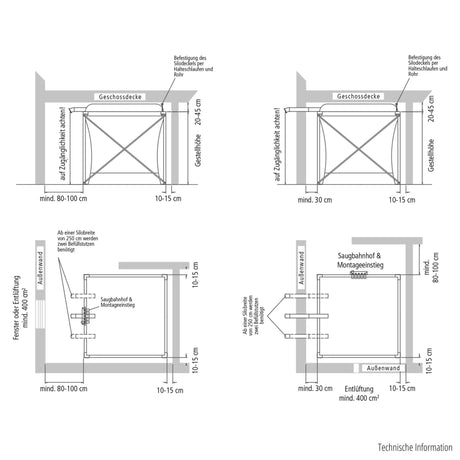
Pelletilo flat floor including frame
Normal priceAway 2.770,15 €Basic priceNot availableIn stockA.B.S.
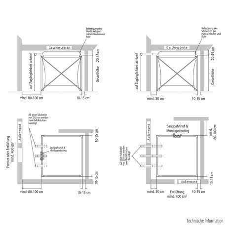
Pelletilo for outside including frame
Normal priceAway 7.236,11 €Basic priceNot availableIn stockA.B.S.
A.B.S. Flexilo Standard pellet silo
Normal priceAway 2.178,54 €Basic priceNot availableIn stock